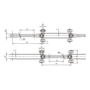
Dvojitý kĺbový dopravný reťaz je hlavnou ťažnou súčasťou ľahkého uzavretého dopravníka s podvozkom.